コーポレートサイト
兼六パークタウン 一橋学園 第7期
住まい探しのご相談は
お気軽にどうぞ
資料請求
来場予約
LINE
お問い合わせ
トップ
TOP
交通アクセス
ACCESS
物件概要
OUTLINE
間取・価格
PRICE
設備・仕様
EQUIPMENT
環境・地図
LOCATION MAP
想造邸宅
PLAN
新築一戸建て・分譲住宅なら兼六TOP
›
小平市
›
小平の新築一戸建て・分譲住宅
PRICE
PLAN
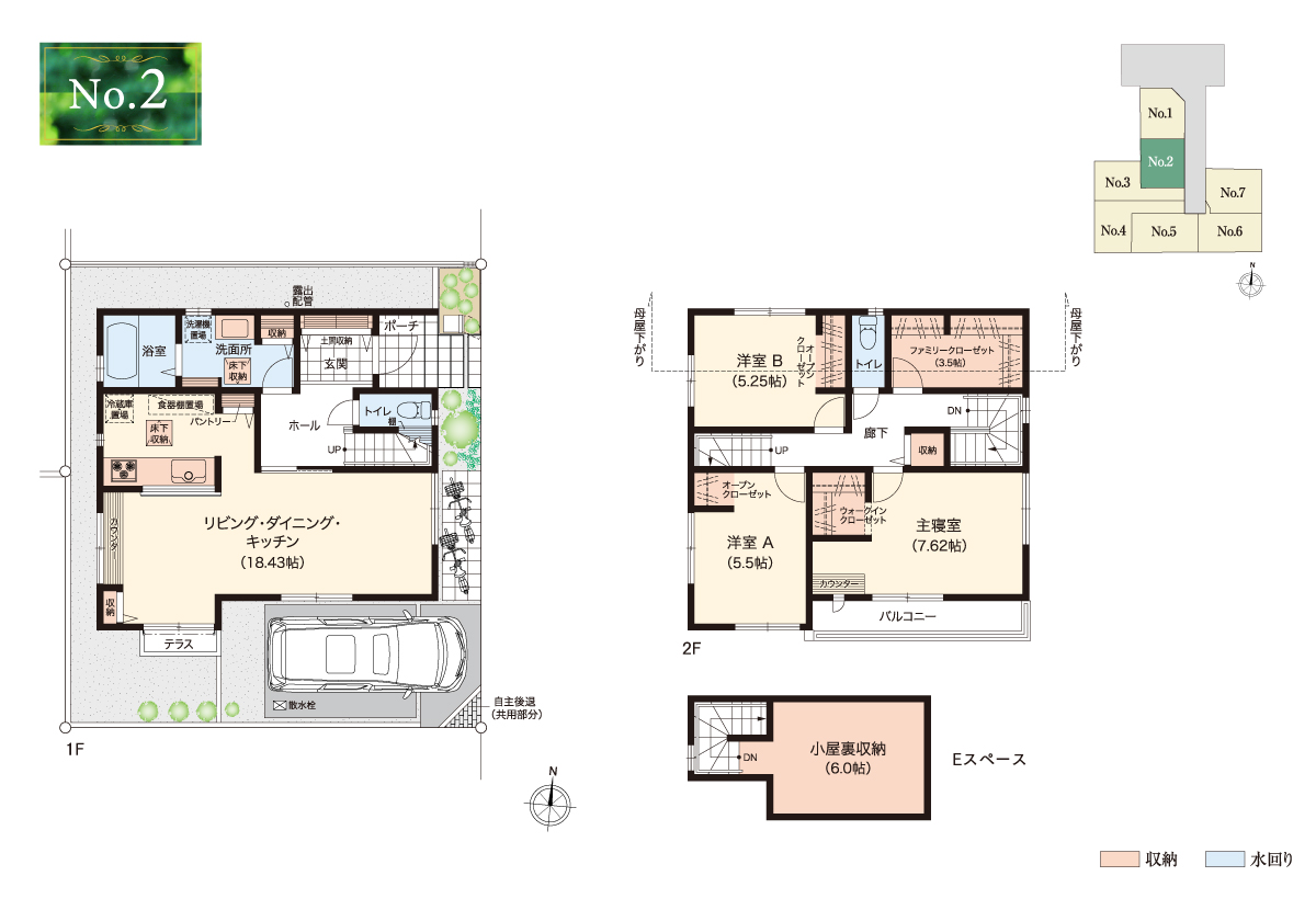
No.1
No.2
No.3
No.4
No.6
No.7
物件名
兼六パークタウン 一橋学園 第7期(2号棟)
住所
東京都小平市学園西町2丁目1614-6他(地番)
間取り
3LDK+土間収納+パントリー+WIC+ファミリークローゼット+Eスペース
価格
6,906万円
敷地面積
102.78m²
建物面積
103.06m²
間取り特徴
全居室2面採光。3面採光・18.43帖のLDKなど開放感ある邸。
2階には3.5帖のファミリークローゼットを設置し、収納も充実。